集团一直以研发高品质精品地产,致力为客户打造舒适、高品质建筑为宗旨,以完善、周到的物业管理服务及特有的经营文化,赢得了广大客户喜爱和市场认可。
|
城光新作,荟鉴未来——城光世纪城2号楼新品震撼上市 发表日期:2022-11-30 浏览次数:0 城光新作 荟鉴未来 用心构造理想家 Create the appearance of a master by heart ![]() 11月26日新品上市 诚邀品鉴 ![]() 壹 用心做品质 Make quality with heart ![]() 城光匠心耕耘三十余年,城光集团一直坚守“用心做品质”的核心理念,做真正有价值的楼盘,以质量和品质赢得市场口碑。稳健实力与高品质产品,极大得给予了市场信心。所以【城光·世纪城】四期星荟自面世以来,备受市场和客户的青睐。 ![]() 不负时光倾注,细致雕琢品质生活。 这次【城光·世纪城】四期星荟,推出又一力作新品,并于11月26日举办2号楼新品发布盛典,与大家共襄盛宴,一同见证这一灿烂时刻,揭秘城光热销背后的流量密码。 ![]() (实景图) 11月26日晚,现场来宾云集,人潮涌动,共鉴【城光·世纪城】四期星荟2号楼新品发布盛典。 活动所邀请的贵宾悉数到场,大家首先参观此次新品样板房,所到之处都留下了衷心的赞美。 ![]() ![]() ![]() ![]() 来宾表示,样板间的每一处陈设、每一道精工,每一个角度都超乎所想。他们仿佛亲身感受到了在这里居住和生活的奢适质感。 同时,也对【城光·世纪城】四期星荟所传达“一生之城”的理念表达了充分的肯定,把城光四期的完美人居范本尽收眼底,并给出了一致盛赞。 ![]() ![]() ![]() 贰 活动现场 Activity site ![]() 本次活动现场布置处处彰显城光的诚意,以新中式风格为基调,体现出新中式的静逸与豁达,表达了人们对东方生活意境的美好追求,更将品质感融入每一丝细节。
19:00分,活动以一场震撼的灯光秀开场,伴随着光影变换和激昂的音乐,一场视觉、听觉、味觉的盛宴就此拉开帷幕。
(实景图) 活动伊始,主持人宣传盛典正式开启,邀请城光·世纪城项目领导上台致辞。 城光营销部总监向各位来宾表示热烈的欢迎和衷心的感谢,同时也在此表达了对城光·世纪城发展前景的肯定与寄予厚望。
![]() (实景图) 紧接着,城光销售负责人从品牌影响、地理位置、规划布局等多个角度对【城光·世纪城】四期星荟项目进行简明阐述,现场来宾对项目有了更深一步的了解。 ![]() (实景图) 在到场来宾的见证下,共同参与启动仪式,也预示着城光四期新品正式加推。 ![]() (实景图) 为了让来宾们充分感受到城光的美好生活以及人性化魅力,活动现场还特别安排了舞蹈、沙画、乐队等表演,精心准备的丰盛晚餐,抽奖活动等,一场视觉与听觉的饕餮盛宴,让现场活动气氛走向高潮。从现场的热烈氛围可以感受到大家对项目表现出非常浓厚的兴趣。
(实景图) 叁 新品强势推出 New products launched strongly ![]() 伴随着现场的音乐,来宾们在此次盛典活动中感受到了来自城光·世纪城的匠心工艺,和传达的项目构建美好人居的愿景。 至此,本场样板房开放活动也正式落下帷幕。 ![]() (实景图) 城光星荟因品质而舒心,专注对美好生活的精心雕琢,用人性化的细节考量竭力打造出CBD标杆人居,每一次的细节呈现都不负所期,此次2号楼新品加推盛典活动只为启幕理想生活,再会美好未来!
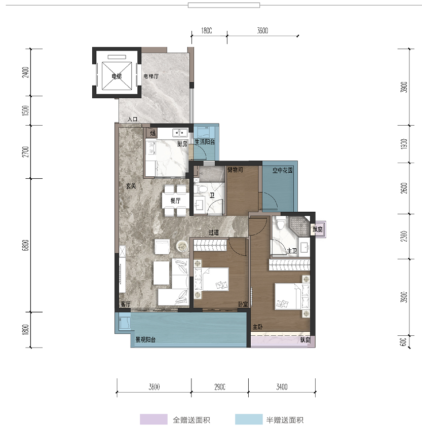
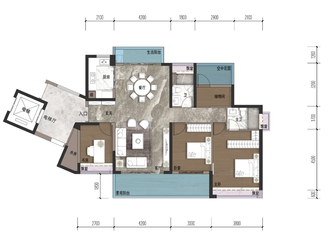
精品总会脱颖而出,城光为什么在市场上独树一帜,其最重要的是独有的产品力。 目前【城光·世纪城】四期星荟2号楼新品正在火热加推中! 户型鉴赏 House appreciation ![]() 逾7米南向阳台,不仅让阳光横向生长,也可享受私密舒适空间。 ![]() 近35㎡大尺度客餐厅一体化设计, 实用N+1书房设计,储藏间连通空间花园布局,让整体空间更显开阔, 邂逅N种生活可能。 ![]() ![]() 一梯两户双开门设置, 公摊面积秒变私享入户。
双百变X空间,空间布局紧凑, 分寸必用,利用率高。
南向三面采光,近9米南向面宽, 逾5米南向阔景阳台, 明厨明卫空间, 让光线、空气、视线 在此方自如流转。
生活品质进阶, 对空间有了更多苛求, 3+1房设置,给生活更多创享可能。
客厅作为展示主人身份的名片, 南北通透,户户皆享大面积采光, 阳光清风悠然入室, 园林美景尽呈眼前。
客厅、主卧、次室三开间朝南, 餐客厅一体融会贯通, 在一定程度上扩大空间感, 让幸福驻留在生活的每一寸时光里
开发商:茂名市城光置业有限公司 预售证:001-440901-2022-00032-1 |
地址:广州市广州大道北613号城光大厦八楼 电话:020-87631888
Copyright © 2015 城光集团有限公司版权所有 粤ICP备11076522号-3
